Campana de convección | Opcional |
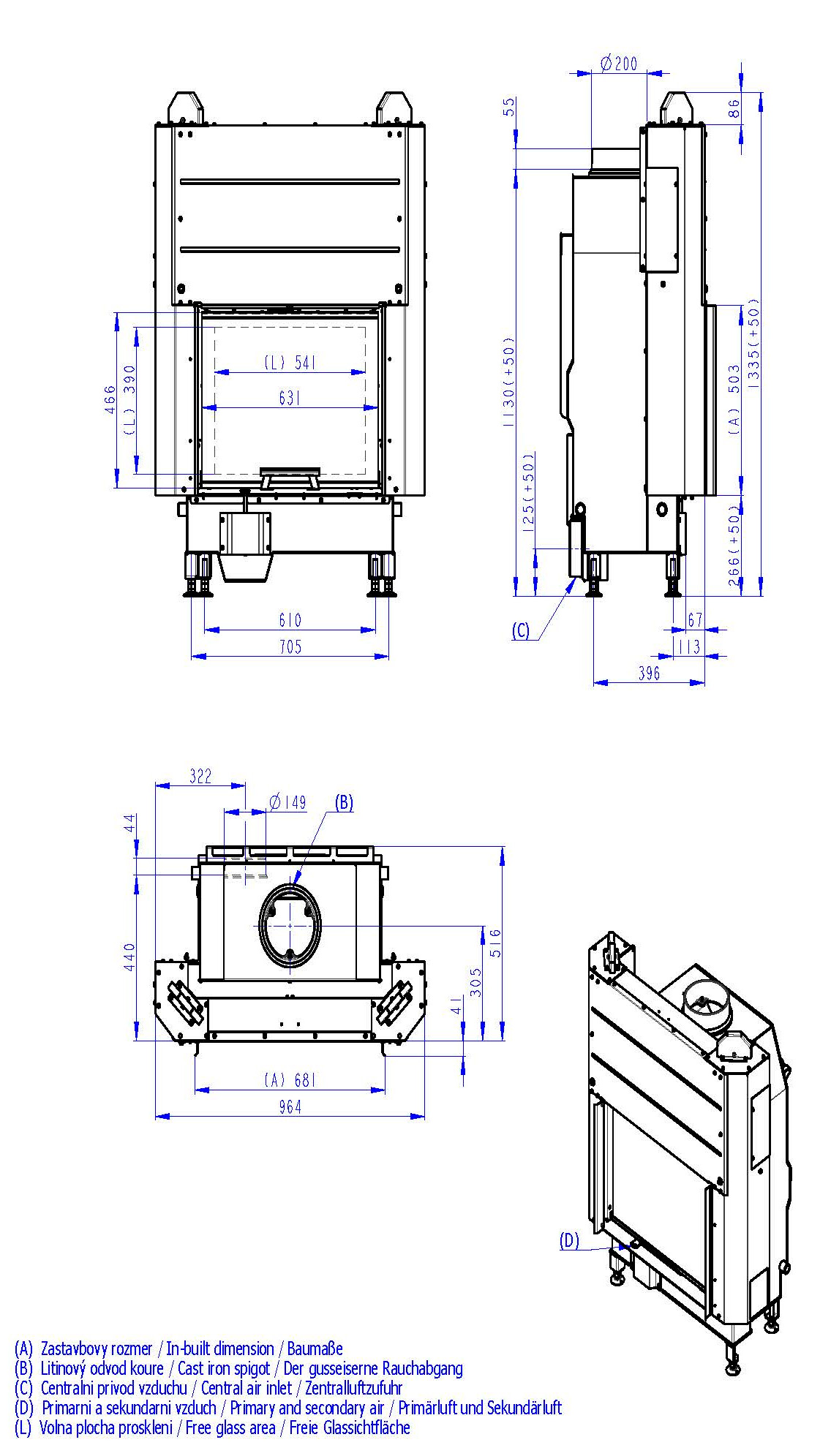
Diámetro salida de humos (mm) | 150 |
Diámetro toma de aire exterior (mm) | 150 |
Ecodesign | Sí |
Etiqueta energética | A+ |
Número de caras | 1 |
Peso (Kg) | 233 |
Potencia máxima (kW) | 10.1 |
Potencia mínima (kW) | 3.9 |
Potencia nominal (kW) | 10.1 |
Salida de humos | Superior |
Tipo de puerta | Guillotina |
Toma de aire de combustión exterior canalizable | Sí |
Ventilación forzada | No |

Chimenea de leña F85/63
31/03/2023
Instalación de chimenea de leña con puerta frontal de abertura tipo guillotina modelo FG 85/63 de la firma Romotop. Montaje efectuado por nuestro distribuidor oficial Lodra Chimeneas de Segovia.
Chimenea de leña FG 107/47
05/11/2021
Instalación de chimenea de leña de puerta guillotina modelo FG 107/47 Ref. H3LG01 con su correspondiente marco decorativo. En las fotografías se puede observar el momento de la preinstalación con la correspondiente instalación de los tubos a falta de terminar la obra con el revestimiento.
Chimenea de leña FG 85/63
05/12/2020
Montaje de chimenea de leña tipo hogar modelo FG 85/63 con puerta guillotina y visión frontal. La instalación tuvo lugar en porche exterior con techo tipo sandwich en la población de Vilafranca del Penedés (Barcelona). Teniendo en cuenta las instrucciones del fabricante y la normativa vigente en España el tubo se alargó hasta cumplir el tiro mínimo necesario para alcanzar los pascales requeridos.